VIRTUAL TOUR
VIDEO
GALLERY
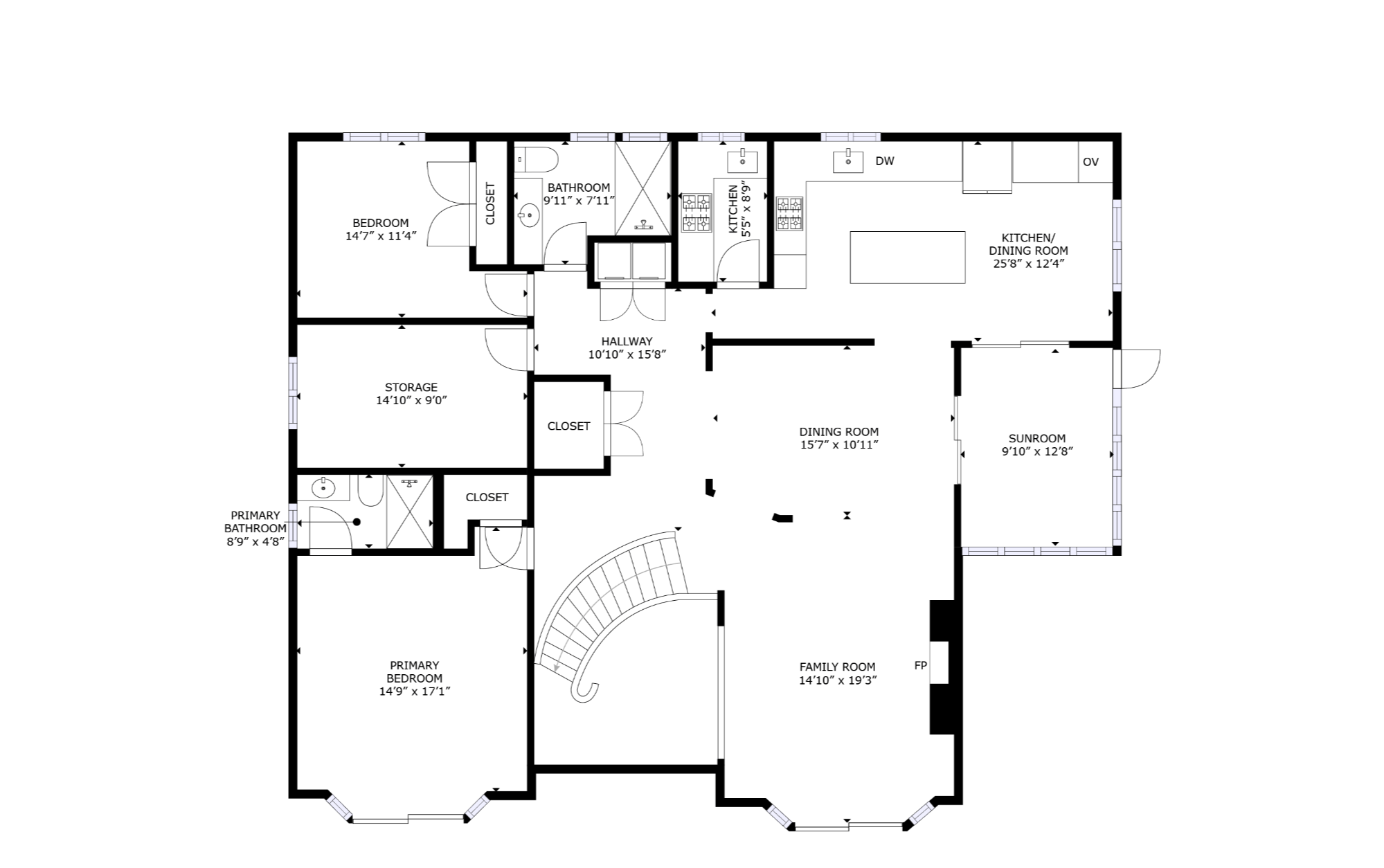
PROPERTY DETAIL
Key Details
Property Type Single Family Home
Listing Status Active
Purchase Type For Sale
Square Footage 3, 708 sqft
Price per Sqft $539
Bedrooms 6
Full Baths 4
Year Built 2025
Lot Size 7,197 Sqft
Location
Province BC
County Metro Vancouver
Others
Virtual Tour https://my.matterport.com/show/?m=UfiGieEACF7&
CONTACT

Rooz Zare
Powered by Lofty Inc. Copyright 2026. All Rights Reserved. Privacy Policy & TOS








